-DIYリフォーム歴代記録2- 平屋のいえ 2004年

POPEYEのいえ から3年。私は大学卒業後、地方のメーカーへ就職し新たな地へ移り住んでいました。1年間は研修の都合で6畳一間の寮生活をしていたのですが、まあまあ大きくてDIYがOKな平家が見つかります。この記事は、そんな平屋を社会人でありながら学生のノリでDIY改装してしまった 改装2軒目 のおはなしです。
テンションの下がる6畳一間の寮生活
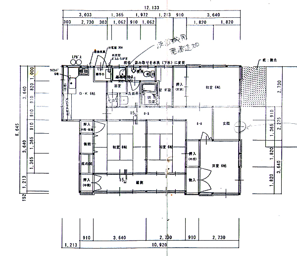
冒頭でも触れましたが、会社の寮は県営団地の様なもので3人1組で一世帯分をシェアしたものでした。下の間取りを見ると分かる様に、玄関は一つ、その中の3部屋にカギ付き扉を付けて一応個室になるようにしているだけ。隣と音は筒抜けだし、キッチン、トイレは共同、プライバシーはほぼありません。

家賃は光熱費込の天引きで激安(1.2万とか)でしたから、4年位はこの寮で生活して「結婚資金でも貯めなさいね」というのが会社の推奨パターン。だったのですが…テンションは下がります。そして思ってしまったんですね。「何かが足りない…。」と。
寮生活に何か物足りなさを感じる
この頃は仕事が終われば寝に帰る毎日。それだけ考えれば寮の生活は必要十分でした。ただ、クリエイティブな職種だった事もあり、だんだんと「この部屋で面白い事が考えられるのか?」と考え始める様になります。
DIYという作業の中には、思考や気づきがあって何より手を動かしていると頭が活性化されて面白い事が浮かんだりするものです。多分、そういう事が日常的に出来る空間を欲していたのだと思います。
あとは単純に学生の頃に自由な一軒家の暮らしを味わってしまったので、寮生活がなんとも味気なくて「何かが足りない」と思ってしまったのでしょう。
結局はまたそんな事を考えて、私はまたまた自由にDIYで改装ができる家を探し始めたのでした。
地方では結構ある?改装OKな賃貸物件
「POPEYEのいえ」では物件探しに苦労しました。この時も中々見つからないだろうと考えていましたが、なんと数日で3件程回答が来ました。週末に見て回り(当時お世話になったのはCentury21)その中で諸々条件が良かったのが下の写真の平家。(隣も空き家だったが二階建てであまり興味をそそられなかった。)

ちなみに不動産屋さん曰く「地方では借り手が少ないから、こういう物件は結構ありますよ。借り手が見つかって大家さんも喜んでました」との事。こういった実情が現在の「空き家バンク」にも繋がってるのかもしれませんね。
見て頂くと分かる様に室内もごくふつうの民家です。広さがありますが、学生の頃に住んでいた「POPEYEのいえ」をグレードアップした様な 平屋のいえ でした。家賃もグレードアップして7万と学生の頃の約2倍でしたが、予算的には問題なくDIYの素材としては十分すぎるのでいろいろと腑に落ちた物件でした。(いま思えば一人暮らしだし、もう少しコンパクトな物件でも良かったのかも…)

DIY改装の振り返り
そんな風にまたもや程良い物件を見つけてしまい引っ越してきたわたくし。就職して資金も潤沢(といっても小遣い程度)だったからか週末は思いっきりDIYを楽しみました。 以降では当時を思い出しながら、改装した箇所を振り返ります。
下の画像で見たい部屋をクリック(タップ)するとその内容にジャンプします。(じっくり見て頂ける方はそのまま下へスクロールを。)
1. 安眠できるシンプルな寝室

「POPEYEのいえ」では改装の猶予がありましたが、この時はそれが出来なかったので、住みながらの改装となりました。どこからやるべきか考えた結果、まずは安眠出来る寝床の確保だ!という事でいちばん初めに着手した寝室。眠る事だけに集中出来るシンプルな寝室を目指しました。
まずは空気清浄化のために壁を漆喰塗り(写真下)。ただこの時が初めての漆喰塗りで、なんと砂壁に漆喰を直接塗るという大胆な行動に…。当然のごとく塗る時に水分が吸われるので漆喰が伸びずに非常に塗りづらかったです。

塗ってくっつかない事はないのですが、水分が吸われて漆喰がすぐに硬くなります。壁に付くようにかなり力を入れて塗り込むために筋肉痛になるほど無駄な力も使いました。上の写真ではクシ目という模様を付けてありますが、これもなんだかボソボソ…。本来はもっと柔らかい状態で線を引くのでこんなにボソボソしませんし、壁に塗る時も力はそれほどいりません。これはあくまで失敗例。

砂壁みたいに漆喰を塗ると水分を吸う壁は、水分を吸われない様に「水引調整」(城かべシーラーとか塗る)をしますが、そんな事考えもせずただひたすら塗っています。運が良かったのか数年経っても剥がれ落ちたり、アク(シミ)が出る事はありませんでしたが、作業効率を考えたら迷わずシーラー塗布をおススメします。(塗り面積が広い場合はなおさら!)
ちなみに漆喰の脱臭機能はすごく実感しました。引っ越した当時は古い家の臭いが気になっていましたが、塗った後は気にならなくなり、人に聞いても無臭に近い印象だったそうです。
そして上の写真にもありますが、床は畳が古かったので剥がしてOSB合板の床にしました。畳をはがして出てきた床板の上に2×4を並べて下地を作り、その上にOSB合板を載せています。畳は厚み55mmでしたが、それに代えて2×4(厚み38mm)+ OSB合板(12mm)なので仕上がりは畳より5mm程下がりました。ちなみに、今見ると2×4はもっと間引いても良いしスタイロフォームとかで断熱しても良かったかなと思います。

OSB合板はオイルステインのウォルナットをうすめ液で薄めて塗ったら濃淡も出ていい感じになりました。OSB合板はおもて面がすべすべに仕上がっているので、塗料もするっと伸びて塗り易く安価なのもポイント。柱と天井は薄めずにオイルステインのウォルナットで塗装しています。ブラインドはニトリのものがぴったりで、ベッドマットレスはFrancFranc、サイドテーブルは自作です。




朝日や夕日が入った時の表情も、白熱球で照らされた夜の表情もなかなか良かったです。玄関すぐ横の部屋だったので疲れて帰って来た時とかすぐ寝れたのも〇でした。押入れは前回の家でも使い勝手の良かったぶち抜きスタイル。衣装ケースが置いてある天袋はもうちょっとやりようがあったと思いますが、この当時はこれ以上こだわって作る気概がなかったんでしょう(笑)
2.長~い廊下

寝室から一番奥のキッチンまで続く長い廊下の壁も漆喰を塗りました。玄関から奥までよく見える所なのでなかなか面積がありますが頑張った部分です。毎週末に少しずつ進めましたが、上の方は脚立に上らないと届かないので時間が掛かるし中々時間が掛かった覚えがあります。

そして同時に天井に照明の長いダクトレールを新設しました。これだけでも雰囲気がよくなります。

そんな感じで廊下もだいぶスッキリしました。

3. デスクワークがはかどる仕事部屋

次に仕事部屋に着手。この家唯一の洋室だったので、内覧の時からここは創作やデスクワークがはかどる仕事部屋にしようと考えていた部屋でした。

一番のポイントはこの丸窓。仕事部屋からも庭を見ながら仕事がしたかったのと机上に少しでも自然光を入れたかったので、洋室のクローゼットを解体して縁側とを隔てる壁を壊してそこに丸窓を取り付けました。ちなみにこの丸窓は近所の建材屋さんのアウトレットで2万円程!

丸窓がはまる壁はこんな風にベニヤに正円を描いて(写真上)切り抜きました。大きい円を描く時にはこの方法が便利です。円の中心を固定して、出来るだけ距離の変わらない素材の先に鉛筆を付けて回して描くという方法。糸でやる方もいますが、糸は伸びたりするので注意が必要です。

次にクローゼットを解体して、丸窓を固定するための「まぐさ(窓上の下地)」と「窓台(窓下の下地)」を入れました。床は薄めのベニヤだったので一度剥がして2×4で張り替え。壁を剥がした中にはちょうどいい高さの胴縁(下地)があったので、そのまま利用してワークデスクの天板を載せました。

クローゼットを解体

床板とデスク天板を取付

反対側の壁も造作
そしてクローゼット上の天袋は、そのままだとかっこ悪かったので装飾としてFIX窓っぽいものを付けることにしました。ガラス部分はプラダンで暗くならない様にして枠は1×4材です。

プラダンで明るさも確保

枠をカットして溝をつく

木工ルーターが活躍
枠を塗装してコの字に組立ててから、枠の内寸に掘り込み深さを足した大きさにカットしたプラダンを差し込んで上の辺を被せネジ留めして枠は完成。あらかじめこの大きさに抜いておいた壁に入れ込み、両サイドに柱があったのでそこに木ネジで固定して設置も完了です。

枠を塗装して組み立て

プラダンを入れて組立完成

壁に入れ込む
最後に壁は仕事中の空気もフレッシュにしたいと思い消臭効果があるという漆喰にしました。こちらも寝室同様、いきなり壁に漆喰を塗っています。。(※寝室と違い一部プリント合板仕上げの壁があったのですが、数日経つとそこは黄ばみと浮きが出ました。皆さんはシーラーを塗って下さいね。)
玄関とを隔てる壁は採光のために一部を抜いて木枠にはめたプラダンを入れました。

懲りずにそのまま漆喰を塗る

玄関への採光のため壁を抜く

木枠とプラダンで採光窓に
そうして出来た部屋がこちら。天井は教室みたいな天井(ジプトーン)だったので水性ペンキで白に塗装しています。ブラインドはいつものニトリで、天井照明はシーリングファンに替えて空気の循環を優先、明るさは自作の可動式アームの間接照明で確保しています。

PCデスクはごちゃごちゃしてますがこんな感じに。(DELLのPCタワーがデカすぎて時代を感じます)

肝心の庭が見えている写真がひとつも残っていませんでしたが、いつも丸窓の先に庭を眺めながら仕事していたものです。

もうちょっと片付けたPCデスクの写真がこちら。デスクは幅が1200mm奥行きが800mm程だったと思いますが、やっぱりこの位は欲しいものです。(このブログを書いてる机より広いからなんだか悔しい…。)
4. 和風を残した玄関

仕事部屋とほぼ同時に進行したのが玄関。ここは両側が壁に挟まれてとにかく暗かった。日本家屋なので余計に寂しさが強調されてしまいます。(写真下)

ただ床が土間コンだったり、玄関扉が木の格子戸だったりと元々の雰囲気は良かったので、手を加えるのは最低限でいいかなと思っていました。

その一つがこの下駄箱。至って簡単な構造です。2×8を枠状に組んで2段に重ね、棚板を付ける時に同時に外側の側面から木ネジで固定します。最後に脚を付けてオイルステインで塗装して完成です。

枠状に組むため仮組しているところ

2段に重ねた状態で棚板を付けていく

最後に脚を付けて完成
もう一つ手を加えたのが両サイドの壁で、一度抜いて木枠のプラダンFIX窓に替えて少しでも採光をとりました。今だったらもう少し凝ったFIX窓にして、玄関引戸と見た目を合わせて曇りガラスを入れて更なる統一感を出していたかも知れません。

遊びに来た知人のロードバイクもかっこよく置けちゃいます。というか、和風の玄関にロードバイクってなんだか絵になる。そしてなんだか分からないけど京都っぽい。


照明はFranfranc

扱いに困った石臼

靴も沢山並べられる
照明はFranfrancで見つけたもの。和風のインテリアにデザイン照明は絵になります。あと最後まで使い道に困ったのが、初めから置いてあった石臼。水を溜めてお庭で使うのが良かったでしょうか。下駄箱は一人暮らしの割に靴が多かったので、沢山綺麗に並べられて満足していたのを覚えています。
5. 和風だけどナチュラルなキッチン

次に取り掛かったのがキッチン。前回の POPYEのいえ では暗い印象のキッチンで女の子ウケも良くなかったので、もうちょっと明るくてナチュラルなキッチンを目指します。でも下の写真でも分かる様に改装前は中々な荒れ具合。

まず思いついてやってしまったのが、またもや土壁のぶち抜き。汚れるし初めにやってしまおうと、シンクと逆サイドの壁を抜いた写真です。なぜここを抜いたかというと、友人が来た時に料理を作ってここから隣の部屋に「はい、できたよー」ってやりたくなっちゃったから。(まあ一回もやりませんでしたが…)

土壁の中には補強の竹小舞が

向こう側は隣の部屋の押し入れ
大工さんなんかは慣れてるので電動丸ノコで土壁と中に入っている竹小舞を一緒に切る様に抜いちゃいますが、ものすごい砂埃が出て部屋中に舞うのと、やはり危険な方法なので私はおススメしません。
私はハンマーで少しずつ土を崩していって、ノコギリで竹小舞を切るという地道な方法でやりました。丸ノコほどは砂埃も出ずに(と言ってもまあまあ出ますが)素人でも時間を掛ければなんとか出来る方法です。

土壁の端部に木で見切りを付ける

棚板を付けてディスプレイスペースに
大体崩したら切り口がぐちゃぐちゃなので、木で見切り(写真左)を付けます。まだ壁に漆喰を塗って仕上げたりと時間が掛かりそうなので、とりあえず棚板を付けてディスプレイスペースにしました。

その後はちょこちょこ壁や天井を白く塗ったり、シンク下の扉を塗ったりして白とウッド基調でまとめていきました。この頃色に迷ったら白!って決めてたし、今見てもそんなに嫌じゃないです。柱や建具も全部白!という選択肢もあったかなと思いますが。

照明は洋風だけど白をチョイス

ソープディスペンサーも白

窓を利用したアジのある換気扇は元から

イカの肝焼き
気に入っていたのが、写真左の「出窓」と「台」みたいなスペース。シンクの左側は造り付けの棚になってて結構な収納力だし、シンク前は洗った野菜とかちょっとしたものが置けて、調理の際にもとても便利でした。(解放感を出すために出窓にあった既存棚は撤去)


立ち上がりの部分にある白いタイルがかわいくて何気に絵になります。お酒類をディスプレイしたりして楽しんでました。全面に自然光が入るのでガラスが写真映えして撮ってても面白かった。
6.ちょっとカフェ風のトイレと洗面所

次はトイレ。ここは内覧の時に「ぼっとん」かなぁと恐れていましたが、トイレ自体はまさかのリフォーム済の洋式トイレで嬉しい誤算。とはいえ、壁とか洗面台とかは生活感ありありな感じだったので自分好みに変えました。

ピンクのタイルとか、もうホントやだし引っ越してきてから一番テンションの下がる場所だったので、なんとかガラッと変えたいと思っていました。まずは写真にないですが洗面台のシンクを白から茶色に変えました。これ、今ならしないですが油性ペンキの二度塗りです。強引!(笑)たまたま良い感じに表面がガサついていたので塗れたのでしょうが、新しめのつるつるシンクだと塗料がのらずに塗れないと思います。(プライマーの使用を推奨)

鏡や洗面台をマスカーで養生

柱などのマスキングはガムテープも便利

トイレの便座も養生して壁を塗る
そして壁の色を微妙なグレーから、カフェのトイレのみたいな洒落たペールグリーンに。印象も明るくなりました。


ペールグリーンっていうのは淡めのグリーンです。タイルは濃い茶色に塗ってます。タイルに塗るコツは初めからべったり塗らずにガサガサに塗る感じでしょうか。3年程使用してもぺりぺり剥がれてくるような事は無かったですが、基本は下地にプライマーを塗る事をおすすめします!

改装済みだった白い壁紙もペールグリーンに

流木と砂利石で味付け

レトロな型板ガラスが良い

レトロなスイッチはそのままに
7.スペックを持て余したリビング

改装も最後の方になってしまい色々中途半端で終わってしまったリビング。8畳二間に縁側付きで引戸を外して解放していたので、とにかく広くて改装は遅々として進まず全然まとまらなかったです。完全に自分の力不足で、居間のポテンシャルを活かしきれずに持て余してしまったので非常に心残りだった事を覚えています。

広いがゆえに、周りの部屋を改装している間の「仮置き場」と化していました。材料や工具も置いていたのでまさにカオス。この頃はいつも「居間をどげんかせんといかん。」と思ってました。
まずはTVを置くスペースが欲しいと思い、押入れだった所の棚板を解体してすっきりさせました。おそらく先に棚板を作り付けてから土壁を塗っているので、差し込んであった所にはへこみが残りますがここは硬めの漆喰を練って詰め込んでおきます。

押入れを解体する

土壁のへこみを漆喰で補修

漆喰を詰めてフラットにしていく
そして集成材を買ってきてTV台を製作。オーディオの配線をいじったり簡単に出来る様に底面にキャスターを付けて移動できるようにしました。3枚目は出来上がったTV台を仮置きしてみた様子です。

厚めの集成材でTV台を作る

底面にはキャスター

TV台を仮置きしてみた様子
上の写真にもあるなんとも言えない模様のカーテンは全てロールスクリーンに。畳はかなり使用感があったので、シーチング生地を貼って粗隠し。これだけでもだいぶ印象が変わります。

カーテンをロールスクリーンに

畳を裏返してタッカーで留める

同系色で微妙に違う色にした
不要な建具はガラスを抜いてから結束バンドで束ねてCDを置いたり小物を飾るラックとして活用。3枚目写真手前の棚はこの家にもともとあった下駄箱を清掃してニスを塗り本棚にしたもの。

大量に出た不要な建具

ガラスを抜いて束ねてみる

CDや小物を置く棚として活用
壁は土色の壁のままでも良かったのですが、仏壇の壁は白かったりしてバラバラだったので、統一感を出したいと思って黒に塗ってみました。結果、空間が締まって良かったのですが、柱を濃い茶色にして締める方法もあったと思うのでいまだに悩ましいポイントです。

隅から塗っていく

赤い線はオーディオの配線

迷わず全体を塗っていく
床の間なんかは、そのままの色だとやはり和風が色濃くでてしまうので塗りたくなった一因でもあります。この時に「侘び寂び」みたいな感覚を持っていればまた違った選択をしていたと思います。
8.アジアンリゾート風?な風呂場
ここもトイレと同じくユニットバスにリフォーム済みだったので、前回の様な寒い思いはしなくてすみました。ただ、少し普通過ぎてテンションが上がらなかったので、ちょっとだけいじる事に。

床の色がなんか嫌です。もうちょっとアジというか暖かみのある脱衣所にしたかったので、床にウッドタイルを敷き詰める事にしました。バスタオル等を置く場所もなかったので棚も自作します。

ウッドタイルをサンダーがけする

ステインで塗装

棚を載せるための下地
素足で歩いてもいたくない様にウッドタイルをサンダー掛けしてステインで塗装。(上写真左)棚は壁のネジが効きそうなところを探して下地を取付けてから板を載せています。(上写真右)通気性を考えて、その上には丸棒を使ったタオルラックを自作しました。(上写真中)

途中の写真はなかったですが棚はこんな感じに出来上がりました。いま見返してみると、窓に茶色か白のブラインドを付けて左に鏡を利用したドレッサーみたいな棚を造り付けた方がもっと格好良くなっていたかなと思います。あと、タオルは同じ色のもので揃えて綺麗に並べたらベターでしたね。

引きで見るとこんな感じです。木の色を揃えたのでごちゃごちゃせずに良い感じではないでしょうか。意図せずアジアンリゾート風になってしまった感もありますが、床のウッドタイルなんかは来訪者に「なにこれ、洒落てるねー」と中々好評でした。
9.ランドリールーム 兼 物置(旧風呂場)
ここは後回しになっていた箇所です。この家には「旧風呂場」がそのまま残っていました。丁度、洗濯機置き場がなかったしお風呂場だから排水口もあったのでここをランドリールーム兼物置にする事にしました。水道も止めてあり、随分と使われていなかったので湿気も無かったのですが、見た目がどうもいけてなかったので少し手を入れました。

上の写真は完成後ですが、下の写真の様に壁の下部分と床は古くさいタイルでした。これをアジとして許容する懐の広さは当時なかったので油性のペンキで白に塗りました。

油性のペンキで塗っていく

床も塗っていく

早く乾く様に扇風機で乾かした
洗面所と同じく、古いタイルで表面がガサついていたから上手くいったのだと思います。一回目は下地が見える位カサカサに塗って、二度目で仕上げという感じで上手く塗れました。ここも後から剥がれてくる事は無かったですが、基本は「プライマーを塗ってから塗りたい色で塗る」がセオリーという事はお忘れなく。

あとは使われていない配管もあってじゃまだったのでパイプカッターで切ったりとかもしました。少しずつ締めて行きながら回すだけで簡単なのでDIY初心者には重宝するツールです。

旧浴槽もよくある水色のやつだったので、壁と同じ白に塗り上げて収納スペースに。退去時に戻すカーテンとかあまり使わないシーズン物とか入れる様にしてました。上に板を渡して更にモノが置けるようにしたら、見た目もスッキリで「古くさいお風呂感」は無くなったので良かったのではないでしょうか。

こんな感じで最低限すっきりさせたランドリールームでした。

10. おまけ 廃材利用の照明とか
その他、こんなものもDIYで作ったりして楽しみました!

ガラリを再利用した照明

ベッドサイドテーブル

端材を利用したサイドテーブル
11. 大好きな改装も広すぎて大変だったけど…
いかがでしたでしょうか。いま振り返るとDIYへの熱意やスピードも、前回「POPEYEのいえ」より進化した感じがします。ただ、とにかく広くて塗装にしても漆喰塗りにしても時間が掛かり大変でした。DIY改装2回目の自分には持て余した感が否めなかったなあと思います。
でも、電動工具やら新しい材料に挑戦し始めたのもこの頃だったし、いま見ても面白いと思える改装も出来たので経験を積むという視点ではとても良かったです。何事も経験あるのみです!というわけでyorozunoの改装2軒目のおはなしでした!


